Your privacy is important to us. This website uses cookies to enhance user experience and to analyze performance and traffic on our website. By using this website, you acknowledge the real-time collection, storage, use, and disclosure of information on your device or provided by you (such as mouse movements and clicks). We may disclose such information about your use of our website with our social media, advertising and analytics partners. Visit our Privacy Policy and California Privacy Disclosure for more information on such sharing.

Log In

Our Brands

Helpful Tools

Search

Explore Viking Travel Trailers

Home > Viking > Viking Travel Trailers

Explore Viking Travel Trailers

Viking Travel Trailers RVs

Explore Viking Travel Trailers

Viking Travel Trailers

Three time Quality Award winner, and once hailed as the top-selling single axle brand in the industry, the Viking team is excited to bring a newfound product offering to the retail market with an expanding 2025 product lineup.

We still seek to serve the first-time buyer looking for a low monthly payment. But where we were once solely focused on single axles (including pop ups and tear drops), we now are branching into two unique segments while maintaining the tried-and-true best-selling single axles floorplans.

The first segment, which has been received with great retail acceptance over the last 10 months, is a specialty product called… THE ROKs. Short for “Rear Outside Kitchen.” You can learn more about them here: https://forestriverinc.com/rvs/viking-rok

And the second segment, that is being launched all model year, is an offering of lightweight and price conscious tandem axles. Don’t fret, we will still be offering the bread-and-butter single axles that have been a staple of the brand over the last 60 years.

This new focus lets us really dial into our brand motto; “ENHANCING THE CAMPING EXPERIENCE.” Everything we do in product development revolves around this motto. The direct consequences of this focus will be a great retail customer experience.

We still focus on selling our product lineup by weight class, example 3K SERIES (sub 3,000 lb. single axles) and 6K SERIES (unique slide units). Designed to match a specific retail customer’s need, each product series offers distinction in bed configuration, bathroom features, and dinette layout. It’s easy to find the floorplan you desire in the size and weight-class you need.

Regardless of the chosen floorplan, our customers have peace of mind in knowing they are buying the absolute best-in-class quality package (see details in features and option section) in a conventional travel trailer.

Scroll below to see more of our conventional travel trailer lineup.

#CampEasy

Viking Travel Trailers Exterior Image
Follow Viking Travel Trailers on Social Media:

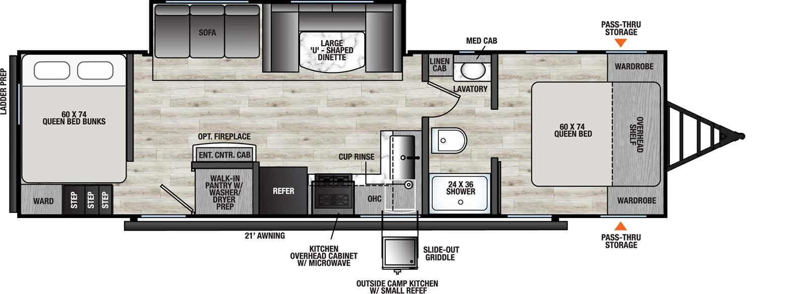
2025 Viking Travel Trailers Floorplans

3K Series

4K Series

5K Series

6K Series

2025 Viking Travel Trailers Features & Options

    QUALITY PACKAGE:
    • Light-Weight Towing Tested Sub-3000 lb. UVW with Max Cargo Carry Capacity in a 7' Wide Frame with Aerodynamic Engineered Front Profile
    • Electric Brakes
    • Easy Lube Axles
    • BAL NXG Frame with Supreme Powder Coating
    • HUCK Bolt Assembly
    • 5/8" Tongue and Groove Plywood Flooring
    • Extended Height Diamond Plate Rock Guard
    • Seamless One-Piece TPO Roof Membrane
    CAMPING MADE EASY ESSENTIALS PACKAGE:
    • 3.2 Cu. Ft. 110 Refer
    • 13.5K BTU A/C (Roof Mounted)
    • 20K BTU Furnace
    • 2-Burner Cooktop
    • Microwave Prepped Cabinet with 110 Outlet
    • Tankless On-Demand Water Heater
    • 2 Rear Stabilizing Jacks
    • Power Awning w/ LED Strip and Adjustable Legs
    • Foot Flush Toilet
    • Back-up Camera Prep
    • Magnetic Baggage Door Latches when available
    • Easy Access Dinette Storage (On most models)
    • Solar Prep
    • USB Charging Ports
    • Cable TV Hook-Up
    • Friction-Hinge Doors
    • Kitchen Sink Cover
    CAMPGROUND EXCLUSIVE PACKAGE (17BH & 17FQ Only):
    • 3.2 Cu. Ft. Refrigerator (12V or 110 Electric – Model Specific)
    • 13.5K BTU Roof-Mounted High Efficiency A/C with Heat Pump IPO 20K BTU Propane Heater
    • Electric Water Heater IPO Tankless On-Demand Water Heater
    • Induction Cooktop IPO 2-Burner Gas Cooktop / Gas Manifold / 20 Gallon Propane Tank and Holder
    • Microwave Prepped Cabinet with 110 Outlet
    • 2 Rear Stabilizing Jacks
    • Power Awning w/ LED Strip and Adjustable Legs
    • Foot Flush Toilet
    • Back-up Camera Prep
    • Magnetic Baggage Door Latches when available
    • Easy Access Dinette Storage (On most models)
    • Solar Prep
    • USB Charging Ports
    • Cable TV Hook-Up
    • Friction-Hinge Door
    • Kitchen Sink Cove
    OPTIONS
    • Power Tongue Jack
    • Spare Tire + Carrier
    • Solid Steps
    • 8.0 Cu. Ft. 12V Refrigerator Ipo 3.2 Cu. Ft. Electric Refrigerator
    • 7.0 Cu. Ft. 2-Way Refrigerator Ipo 3.2 Cu. Ft. Electric Refrigerator
    • Solar Package (200W Panel W/ 30 Amp Solar Controller)
    • Outside Kitchen: Griddle, Bracket, and Hose
    • Microwave
    • All-Terrain Package (Off-Road Tires, Flipped Axle, Solid Steps, Large Grab Handle, Off-Road Spare Tire)
    • Specialized Dispatch Services Travel Easy Roadside Assistance
    QUALITY PACKAGE:
    • Light-Weight Towing Tested Sub-3000 lb. UVW with Max Cargo Carry Capacity in a 7' Wide Frame with Aerodynamic Engineered Front Profile
    • Electric Brakes
    • Easy Lube Axles
    • BAL NXG Frame with Supreme Powder Coating
    • HUCK Bolt Assembly
    • 5/8" Tongue and Groove Plywood Flooring
    • Extended Height Diamond Plate Rock Guard
    • Seamless One-Piece TPO Roof Membrane
    CAMPING MADE EASY ESSENTIALS PACKAGE:
    • 8 Cu. Ft. 12V Refrigerator
    • 13.5K BTU Roof Mounted A/C
    • 20K BTU Furnace
    • 2-Burner Cooktop
    • Microwave
    • Tankless On-Demand Water Heater
    • 4 Stabilizing Jacks
    • Power Awning w/ LED Strip and Adjustable Legs
    • Foot Flush Toilet
    • Back-up Camera Prep
    • Magnetic Baggage Door Latches
    • Smooth Metal Front
    • Large Entrance Grab Handle
    • Easy Access Dinette Storage Access (On most models)
    • Solar Prep
    • USB Charging Ports
    • Cable TV Hook-Up
    • Friction-Hinge Doors
    • Kitchen Sink Cover
    • Kitchen Backsplash
    • Tub / Shower Surround
    • Outside Shower (Hot n' Cold Ports)
    • Omni-Directional TV Antenna
    OPTIONS
    • Power Tongue Jack
    • Spare Tire + Carrier
    • Solid Steps
    • 7.0 Cu. Ft. 2-Way Refrigerator Ipo 12V Refrigerator
    • Solar Package (200W Panel W/ 30 Amp Solar Controller)
    • Outside Kitchen: Griddle, Bracket, and Hose
    • All-Terrain Package (Off-Road Tires, Flipped Axle, Solid Steps, Large Grab Handle, Off-Road Spare Tire)
    • Specialized Dispatch Services Travel Easy Roadside Assistance
    QUALITY PACKAGE:
    • Light-Weight Towing Tested Sub-3000 lb. UVW with Max Cargo Carry Capacity in a 8' Wide Frame with Aerodynamic Engineered Front Profile
    • Electric Brakes
    • Easy Lube Axles
    • BAL NXG Frame with Supreme Powder Coating
    • HUCK Bolt Assembly
    • 5/8" Tongue and Groove Plywood Flooring
    • Extended Height Diamond Plate Rock Guard
    • Seamless One-Piece TPO Roof Membrane
    CAMPING MADE EASY ESSENTIALS PACKAGE:
    • 8 Cu. Ft. 12V Refrigerator
    • 13.5K BTU A/C
    • 20K BTU Furnace
    • 2-Burner Cooktop
    • 3-Burner Cooktop (242MK)
    • Microwave
    • Tankless On-Demand Water Heater
    • 4 Rear Stabilizing Jacks
    • Power Awning w/ LED Strip and Adjustable Legs
    • Foot Flush Toilet
    • Back-up Camera Prep
    • Magnetic Baggage Door Latches
    • Smooth Metal Front
    • Large Entrance Grab Handle
    • Easy Access Dinette Storage Access (On most models)
    • USB Charging Ports
    • Cable TV Hook-Up
    • Friction-Hinge Doors
    • Two Bowl Kitchen Sink, Kitchen Sink Covers
    • Kitchen Backsplash
    • Tub / Shower Surround
    • Outside Shower (Hot n' Cold Ports)
    • Omni-Directional TV Antenna
    CAMPGROUND EXCLUSIVE PACKAGE (26BH Only):
    • 8 Cu. Ft. 12V Refrigerator
    • 13.5K BTU High Efficiency A/C with Heat Pump IPO 20K BTU Furnace
    • Electric Water Heater IPO Tankless On-Demand Water Heater
    • Induction Cooktop IPO 2-Burner Gas Cooktop / Gas Manifold / Propane Tanks and Holder
    • Microwave
    • 4 Stabilizing Jacks
    • Power Awning w/ LED Strip and Adjustable Legs
    • Foot Flush Toilet
    • Back-up Camera Prep
    • Magnetic Baggage Door Latches
    • Smooth Metal Front
    • Large Entrance Grab Handle
    • Easy Access Dinette Storage Access (On most models)
    • USB Charging Ports
    • Cable TV Hook-Up
    • Friction-Hinge Doors
    • Two Bowl Kitchen Sink
    • Kitchen Sink Covers
    • Kitchen Backsplash
    • Tub / Shower Surround
    • Outside Shower (Hot n' Cold Ports)
    • Omni-Directional TV Antenna
    OPTIONS
    • Power Tongue Jack
    • Solid Steps
    • Dinette Ipo Bartop / Desk And Barstools (242MK)
    • 17" Oven (242MK)
    • Spare Tire + Carrier
    • 60' Jack Knife Sofa w/ Murphy Bed (25QBH)
    • 15K BTU A/C IPO 13.5K BTUA/C
    • 30 Amp Service w/ 2nd 13.5 BTU High Efficiency A/C with Heat Pump (EV Models Only)
    • 50 Amp Service w/ 2nd 13.5 BTU A/C
    • 7.0 Cu. Ft. 2-Way Refrigerator IPO 12V Refrigerator
    • Solar Package (200W Panel w/ 30 Amp Solar Controller)
    • Deluxe Outside Kitchen (25QBH)
    • Specialized Dispatch Services Travel Easy Roadside Assistance
    QUALITY PACKAGE:
    • Light-Weight Towing Tested (around) 6000 lb. UVW with Max Cargo Carry Capacity in a 8' Wide Frame with Aerodynamic Engineered Front Profile
    • Electric Brakes
    • Easy Lube Axles
    • BAL NXG Frame with Supreme Powder Coating
    • HUCK Bolt Assembly
    • 5/8" Tongue and Groove Plywood Flooring
    • Extended Height Diamond Plate Rock Guard
    • Seamless One-Piece TPO Roof Membrane
    CAMPING MADE EASY ESSENTIALS PACKAGE:
    • 8 Cu. Ft. 12V Refrigerator
    • 13.5K BTU A/C
    • 30K BTU Furnace
    • Main Entrance Solid Steps on all 2-Door Units
    • 3-Burner Cooktop
    • Microwave
    • Tankless On-Demand Water Heater
    • 4 Rear Stabilizing Jacks
    • Power Awning w/ LED Strip and Adjustable Legs
    • Foot Flush Toilet
    • Back-up Camera Prep
    • Magnetic Baggage Door Latches
    • Smooth Metal Front
    • Large Entrance Grab Handle
    • Easy Access Dinette Storage Access (On most models)
    • USB Charging Ports
    • Cable TV Hook-Up
    • Friction-Hinge Doors
    • Two Bowl Kitchen Sink, Kitchen Sink Covers
    • Kitchen Backsplash
    • Upgraded Cabinets
    • Tub / Shower Surround
    • Outside Shower (Hot n' Cold Ports)
    • Small Outside Refer and Pull Out Griddle / Grill (262BHS Only)
    • Omni-Directional TV Antenna
    OPTIONS
    • Power Tongue Jack
    • Spare Tire + Carrier
    • 15K BTU A/C IPO of 13.5K BTU A/C
    • 50 Amp Service w/ 2nd 13.5 BTU A/C Prep
    • 50 Amp Service w/ 2nd 13.5 BTU A/C
    • 30 Amp Service w/ 2nd 13.5 BTU High Efficiency A/C with Heat Pump (EV Models Only)
    • Theater Seats w/ Cup Holder Tables IPO Dinette
    • 17" Oven
    • Fireplace with Remote
    • 7.0 Cu. Ft. 2-Way Refrigerator IPO 12V Refer
    • Solar Package (200W Panel w/ 30 Amp Solar Controller)
    • Premium Outside Kitchen (262DBS)
    • Deluxe Outside Kitchen (292TB)
    • Specialized Dispatch Services Travel Easy Roadside Assistance

Viking Travel Trailers Update Alerts

Please sign up below if you would like to receive notifications when we make updates to this brand. Or, if you only want updates on a particular floorplan, you can select to be updated on each one individually.